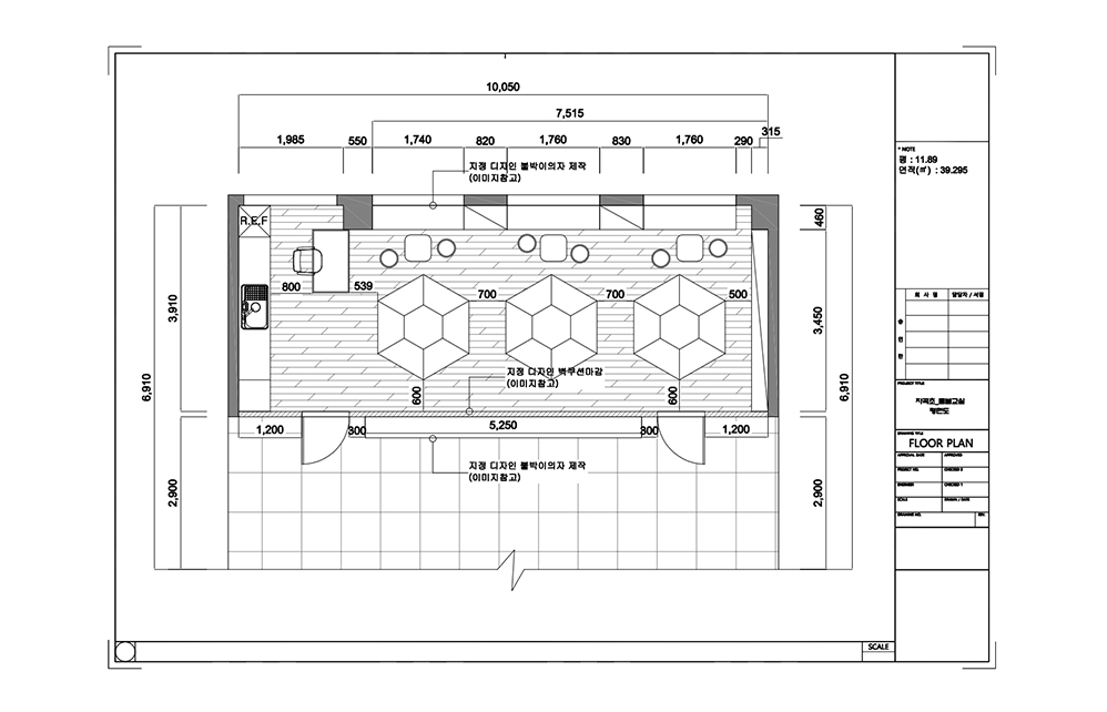
서울자곡초등학교 돌봄교실

팝업이미지
팝업이미지
팝업이미지
팝업이미지
팝업이미지
팝업이미지
팝업이미지
팝업이미지
Completion
Location
Site Area
Type